进口球形止回阀产品简介:
德国多尔德DOLDR进口球形止回阀(微阻球型止回阀,无磨损球形止回阀)主要采用橡胶包皮球为阀瓣,在介质的作用下,可在阀体内的滑道上前后滚动,从而起到打开或关闭阀门。单球微阻球形止回阀、双球微阻球形止回阀主要特点是流量大,流阻压力损失小,密封性能好,消声关闭,可减小水击波。水平或垂直安装均可。微阻球形止回阀可用于冷水、热水、工业及生活污水等管网的水泵出口,防止介质倒流。为了防止介质逆流,在设备、装置和管道上都应安装止回阀。

进口球形止回阀性能参数:
公称通径:DN40-DN350mm
公称压力:1.6Mpa-2.5Mpa
适用温度:0℃~80℃
适用介质:水、油品
阀体材质:铸铁、铸钢、碳钢、不锈钢
连接方式:法兰连接
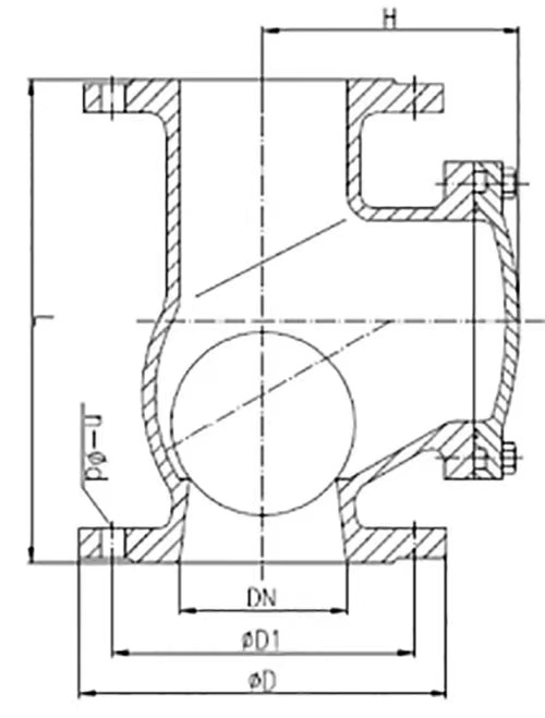
进口球形止回阀结构连接尺寸图:


进口球形止回阀产品优点:
1.球芯材质为铸铝,阀球运动更灵活轻便, 良好的密封。
2.端盖拱形结构减小压力损失。
3.精加工的阀座可实现准确密封。
4.可方便快捷的拆卸阀盖。
5.由于球移动,可以实现全通径流道。
6.通道内设有导向装置,阀球运动无阻塞。
7.浮球体自动清洁。
8.密封装置,可在水平或垂直位置工作。
进口球形止回阀安装示意图:


全国服务热线



